Under Offer
£

Calvert Mews, Dagenham, RM8 1AP

Share 35% / Full price £430,000 / Min deposit £7,525

House
2 bedrooms
Not specified

Sign in to enquire

Summary

A 2 bed shared ownership property available in Dagenham, Greater London

Description

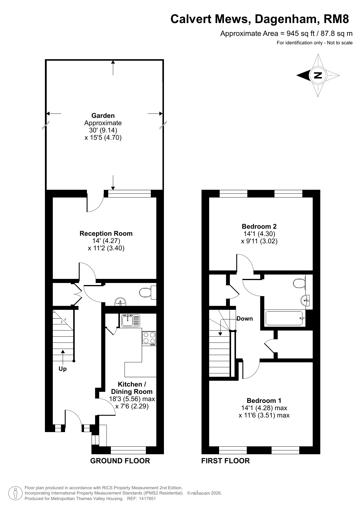
This bright and well-presented two bedroom terraced house is now available in Dagenham, Greater London through Shared Ownership.

The property on the ground floor comprises a separate fitted kitchen and dining area, a living room and a cloakroom. On the first floor, there are two good-sized bedrooms and a bathroom. Perfect for singles, couples or small families.

Outside, the property benefits from a private rear garden.

This home has been created by Home Group, a registered housing provider in the UK. SO Resi is acting on behalf of Home Group to bring this property to the market.

Available for £150,500 for 35% share based on the marketing figure of £430,000.

Monthly rent - £704.79
Monthly Service Charge - £57.21
Total Monthly Charge - £762.00 plus mortgage required for 35% share.

On certain properties, service charges may be billed in different frequencies. For the purposes of illustration, our advertisement will state the equivalent monthly charge. Where charges are not billed monthly, purchasers will be informed before proceeding.

An annual rent increase takes place every April

Location

The property sits in a residential area with everyday essentials close at hand and convenient access via the A12.

Local bus stops are just an 8-14 minute walk away, while Chadwell Heath rail station is only 19 minutes on foot, providing fast and convenient Elizabeth line links into central London.

The nearby High Street offers a great mix of shops, cafés, bars, restaurants, and other useful amenities - all within walking distance. A large supermarket is just 6 minutes away around the corner, while Meredith Walk green space is right on the doorstep. Valence Park is also close by, providing even more opportunities for relaxed walks and time outdoors.

In addition, there are several schools within a 1.5 mile radius or 9 minute drive. Ideal for families with children.

EPC rating

Energy rating band - B

Environmental impact band - B

Lease information

Years remaining on lease: 115

In certain cases, the remaining length of the lease on a property can impact the availability of mortgages to prospective purchasers and the future saleability of the home. We recommend that you speak to your solicitor and your financial advisor to ensure that the lease length is suitable for your needs.

Other information

How we allocate Shared Ownership homes

We offer homes on a first-come, first-served basis, as long as you meet all the eligibility criteria. Sometimes, we give priority to people who live or work in the same area as the home. This is based on rules set by the local authority. All Shared Ownership providers must publish an allocations policy, which explains how they decide who gets a home.

If the home is managed by SO Resi and MTVH

You can read the Shared Ownership allocation policy on the MTVH website. SO Resi is the Shared Ownership brand of MTVH, a housing association.

If the home is managed by another provider

Visit their website to find their allocation policy. Contact us if you have any questions.

Property information & downloads

Local area information

Stations
Showing nearest stations
  • Chadwell Heath Rail Station (0.9km)
  • Chadwell Heath Rail Station (0.9km)
  • Goodmayes Rail Station (2.1km)
  • Dagenham Heathway Underground Station (2.6km)
  • Becontree Underground Station (2.9km)
  • Dagenham East Underground Station (2.9km)
  • Seven Kings Rail Station (3.0km)
  • Romford Rail Station (3.2km)
  • Newbury Park Station (3.7km)
  • Newbury Park Underground Station (3.7km)
  • Upney Underground Station (4.0km)
  • Dagenham Dock Rail Station (4.3km)
  • Elm Park Underground Station (4.3km)
  • Barkingside Underground Station (4.3km)
  • Fairlop Underground Station (4.9km)
  • Gidea Park Rail Station (4.9km)
  • Ilford Rail Station (5.0km)
  • Barking Rail Station (5.0km)
  • Barking Underground Station (5.0km)
  • Barking Riverside (5.3km)

Disclaimer

The information displayed about this property comprises a property advertisement. The Greater London Authority and Share to Buy Ltd make no warranty as to the accuracy or completeness of the advertisement or any linked or associated information, and the Greater London Authority and Share to Buy have no control over the content. This property advertisement does not constitute property particulars. The information is provided and maintained by the sponsoring housing association. Please contact the housing provider or estate agent directly to obtain any information which may be available under the terms of The Energy Performance of Buildings (England and Wales) Regulations 2007.
Sign in to enquire

Monthly cost calculator

This calculator gives an estimate on the total monthly cost of mortgage, rent and service charge whenever applicable.

£ Shared Ownership Resale Full price £430,000
£

How is this calculated?